什么是防火挑檐?
防火挑檐主要用于上下方均设有门窗洞口地方的竖向防火分隔,以达到阻止火势上窜蔓延的目的。
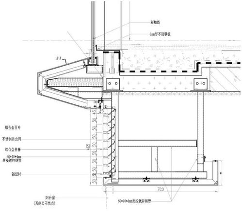
一般采用宽度不小于1米的不燃材料如预制件制作。
工程名词 [英] fire canopy 具体设置应参照国家相关消防设计施工规范进行。
根据国内火。

什么情况下设置防火挑檐
主要用于上下方均设有门窗洞口地方的竖向防火分隔,以达到阻止火势上窜蔓延的目的。
一般采用宽度不小于1米的不燃材料如预制件制作。
高层公共建筑的消防安全疏散道路、楼梯和出入口不得堵塞、锁闭,疏散标志应准确完好,应急照明。
防火挑檐可以放东西吗?
如果是不燃的可以放。
如果是可燃的不能放。
因为防火挑檐就是一个防火的作用,如果放上可燃物的话。
你就失去了它的作用,或是可以通过可燃物进行传递。
如果防火巧言上是不燃的那么防火挑檐还可以依然发挥他的作用。
相当于相。
防火挑檐用在哪些地方,哪些建筑必须使用防火挑檐?
防火挑檐用在哪些地方,哪些建筑必须使用防火挑檐?竖向防火?防火规范每看。【防火挑檐设置】主要用于上下方均设有门窗洞口地方的竖向防火分隔,以达到阻止火势上窜蔓延的目的。
一般采用宽度不小于1米的不燃材料如预制件制作。
具体设置应参照国家相关消防设计施工规范进行。
根据国内火灾实例,为防止由底层。